Tin Tức Phúc An Asuka

Đầu tư bền vững tại Phúc An Asuka - 0979.79.79.69

30/08/2022 14:21
Phúc An Asuka đầu tư bền vững và xứng tầm tại thị trường bất động sản Châu Đốc nhờ sở hữu vị trí đắc địa kim cương tại Thành phố du lịch có nhiều tiềm năng phát triền trong tương lai, đồng thời dự án được quy hoạch hiện đại...

Phúc An Asuka ghi điểm bởi Chính Sách Bán Hàng Hấp Dẫn Độc Nhất Vô Nhị

26/08/2022 16:11
Hàng loạt chính sách ưu đãi Trần Anh Group từ giá bán đến chính sách hỗ trợ của dự án Phúc An Asuka được tung ra thị trường vào tháng 08/2022 đã thu hút đông đảo sự quan tâm của khách hàng và nhà đầu tư.

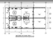
Bản Vẽ Các Mẫu Nhà Liền Kề Dự Án Phúc An Asuka 0979.79.79.69

25/08/2022 14:38
Rất nhiều khách hàng quan tâm đến dự án Phúc An Asuka đều muốn hiểu rõ bản vẽ dự án những căn nhà liền kề mà mình mua. Cho nên bài viết này sẽ cung cấp nhưng thông tin về bản vẽ thiết kế của từng ngôi nhà bên trong...

Nhà 3 4 5 tỷ Châu Đốc - dự án phúc An Asuka

25/08/2022 09:54
Hiện tại Tập đoàn trần Anh Group đang mở bán nhà phố biệt thự tại Cổng Chào Thành phố Châu Đốc đường Tôn Đức Thắng kế bên văn phòng Trần Anh 664 Tôn Đức Thắng với giá bán khá hấp dẫn chỉ 3,6 tỷ/căn tên dự án là Phúc An...

TRẦN ANH GROUP BÀN GIAO SỔ HỒNG DỰ ÁN LONG PHÚ VILLA

25/08/2022 09:30
Vừa qua, Trần Anh Group đã thực hiện Lễ bàn giao sổ hồng cho cư dân dự án Long Phú Villa tại Long An.

Chỉ 620 triệu sở hữu ngay 1 căn phúc An Asuka - 0979.79.79.69

24/08/2022 16:01
Phúc An Asuka sở hữu hàng loạt điểm ưu thế khẳng định sức hút tại vùng đất tâm linh An Giang, đặc biệt hơn nữa hiện nay các khách hàng còn có thể sở hữu ngay sản phẩm tại Asuka với giá trị thanh toán trước chỉ 20% đã có...